Jaké dveře prodáváme
Dvere Aluplast 4000
Z našeho skladu si můžete přímo zakoupit plastové vchodové dveře Aluplast, které si můžete snadno namontovat i sami. Nemusíte se obávat, pokud montáž neprovádí odborník – dveře Aluplast mají pevnou a stabilní konstrukci, takže se nemohou posunout ani rozštelovat a jejich instalace je bezpečná i pro laiky. Pro dveře Aluplast jsou všechny náhradní díly dostupné také v České republice, takže s jejich údržbou nebudete mít žádný problém ani v budoucnu. Ke všem produktům zakoupeným u nás máme všechny náhradní díly ihned skladem a do 48 hodin je doručíme přímo na vaši adresu. Nakupujte s důvěrou přímo ze skladu – kvalita, rychlost a spolehlivost na jednom místě.
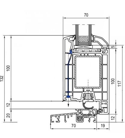
Technický výkres dveřního profilu

Profil
IDEAL 4000 je základní nabídka v oblasti řešení vchodových dveří aluplast. Díky vícekomorové konstrukci s hloubkou 70 mm a použití dveřního prahu s termoizolační vložkou mají velmi dobré parametry tepelné izolace. Použití ocelových výztuh s velkými průřezy a svařovatelných rohových spojek zaručuje odpovídající statické a pevnostní vlastnosti.

Panty
3D nastavitelné AT-27 (nosnost jednoho pantu 140 kg)

Výrobek je vyroben ze zinkové slitiny, ložiska jsou z polyamidu vyztuženého skelnými vlákny. Je možné jemné nastavení uzavřené polohy. Povrchová úprava je provedena polyesterovým práškovým lakem odolným proti UV záření, zinkový povlak má zlepšenou odolnost proti korozi.
Technické údaje pantu :
Barva: bílá (RAL 9016)
Montážní šrouby: PZ-2
Maximální hmotnost dveří: 140 kg
Vzdálenost mezi dveřním křídlem a rámem: 15 – 23,5 mm
Horizontální nastavení: +10 / -5 mm
Vertikální nastavení: +5 / -1 mm
Nastavení ve směru těsnění: +1 / -1 mm
Kování
Euro Elzett - 5bodové kování ovládané klikou

Vícebodový zámek Euro Elzett představuje spolehlivé a bezpečné řešení pro vstupní dveře rodinných domů, bytů i komerčních objektů. Díky vícebodovému uzamykání poskytuje vysokou úroveň ochrany proti vloupání a zároveň zajišťuje pevné a těsné dosednutí dveří do rámu.
Vlastnosti:
Vícebodové uzamykání – hlavní jazýček + přídavné uzamykací body po celé délce dveří
Vysoká bezpečnost – odolnost proti vypáčení a vytažení
Kompatibilní s europrofilem cylindrické vložky
Tichý a plynulý chod
Dlouhá životnost díky kvalitním materiálům a preciznímu zpracování
Výplňe dveří
PVC sendvičový panel 24 mm

Sendvičový panel z PVC o tloušťce 24 mm je určený pro výplně dveří a oken. Díky své vícevrstvé konstrukci zajišťuje vysokou tepelnou a zvukovou izolaci, odolnost proti vlhkosti a dlouhou životnost. Panel má hladký bílý povrch, který je snadno omyvatelný a odolný vůči UV záření.
Konstrukce panelu:
Vnější vrstvy: tvrzené PVC desky s hladkým povrchem
Jádro: izolační vrstva z polystyrenové pěny (EPS)
Celková tloušťka: 24 mm
Vlastnosti:
-Vynikající tepelná izolace
-Odolnost proti vlhkosti a deformacím
-Nízká hmotnost a snadná montáž
-Dlouhá životnost bez nutnosti údržby
Technické údaje:
Tloušťka: 24 mm
Barva: bílá
Materiál: PVC / EPS / PVC
Povrch: hladký, lesklý
Odolnost vůči UV záření: ano
